夢まどモデルハウス ふたつの家|アルス株式会社

夢まどモデルハウス

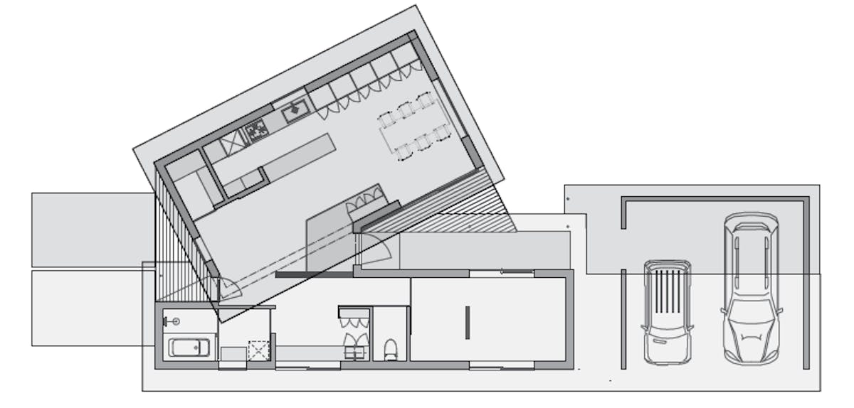
ふたつの家

日々の営みに必要な、充実した「コア/住宅」と、家族構成の変化に合わせて柔軟に
抜き差し可能な「アウター/トレーラーハウス」の組み合わせによって、小さく住み、
ダイナミックに可変する、これまでにない全く新しい住宅の在り方を提案します。

HEAT20 G3 の住宅外皮性能に、放射式冷暖房を組み合わせた静寂な空間。
真冬の東北米沢で、夢まどが作り出すフラッグシップ住宅を、是非ご体感ください。

閉じる

ふたつの家OPEN HOUSE のご案内

所在地:山形県米沢市笹野地内
※会場住所の詳細はエントリー完了後に、別途担当者よりメールにてご案内いたします。

主催:アルス株式会社
共催:アトリエセツナinc. / 株式会社網代建設 / ピーエス株式会社(12.23~25)

期間

2025年12月20日(土)~26日(金)
ご希望日時はフォームよりお知らせください。日程は担当者からのご連絡をもって確定となります。

見学の流れ

1. フォームからお申し込み
希望日時や人数などをご入力ください。
必要事項を送信いただくと、お申し込みが完了します。

2. 担当者より日程のご連絡
ご入力内容を確認し、担当スタッフよりメールまたはお電話にて日程確定のご連絡を差し上げます。
工場見学をご希望の場合も、このタイミングで合わせて調整いたします。

3. OPEN HOUSE にご来場
当日は、専任スタッフが展示会場をご案内しながら、夢まどに関する内容をわかりやすくご説明いたします。

4. 質疑応答・ご相談
設計条件・導入スケジュール・製品仕様・今後の検討段階に応じた相談など、個別のご質問に丁寧に対応 いたします。
事前にフォームでいただいた「その他の質問」にもお答えします。

最終更新日: